Kiến trúc sư nói gì về kinh nghiệm thiết kế căn hộ đập thông?

Ngày càng nhiều hộ gia định chọn giải pháp đập thông căn hộ để có không gian sống rộng rãi hơn, phù hợp với nhu cầu sử dụng mà lại tiết kiệm chi phí một cách tối ưu. Tuy nhiên, việc tìm giải pháp thiết kế không gian sao cho đẳng cấp, hiện đại và đa năng lại là điều khiến gia đình anh Trường phải đau đầu.
Không giống với căn hộ trước đó đang sống, anh Trường rất chú trọng đến việc lựa chọn màu sắc, chất liệu nội thất cho ngôi nhà mới của mình. Đặc biệt là người rất yêu thích thiên nhiên, anh mong muốn thiết kế căn hộ của mình phải có đủ khoảng sáng trong lành từ mọi góc nhìn.
Anh Quang Trường cho hay: “Hiện nay không khó để thiết kế thi công nội thất cho một căn hộ chung cư nhưng tôi thấy các thiết kế thiếu sự sáng tạo, nhà nào cũng na ná nhau, không có điểm nhấn. Tôi muốn tìm một đơn vị thiết kế có gu, hiểu được gia chủ muốn gì và biến nó thành hiện thực”.
Theo anh, thiết kế căn hộ phải đảm bảo được yếu tố thoáng vì ánh sáng vào nhà rất quan trọng đến sức khỏe và đời sống tinh thần của gia đình anh. Và view căn hộ anh muốn có một khoảng không yên bình, một vài cây xanh, hay góc nhỏ để thư giãn mỗi khi mệt mỏi.
Trong hai tuần, anh Trường đã xem qua hết từ công ty thiết kế này, đến đơn vị thiết kế nọ. Nhờ khoảng thời gian này mà anh có cho mình rất nhiều kinh nghiệm về thiết kế thi công nội thất. Sau khi tham quan nhà xưởng và quy trình làm việc. Cuối cùng anh quyết định chọn – KTS Nhà Xanh từ khâu chọn mua căn hộ cho đến khâu hoàn thiện thiết kế và trọn gói. Vì vậy tính đồng bộ và công năng sử dụng các không gian được tận dụng tối đa.

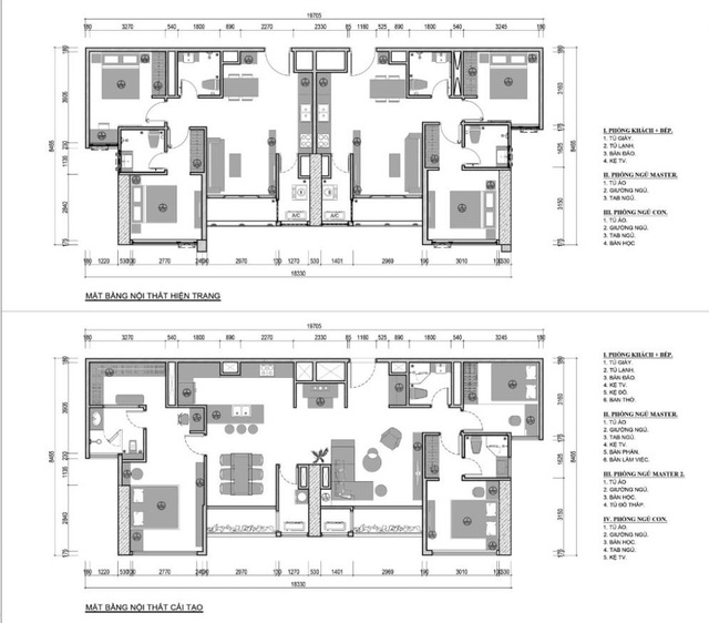
Bản vẽ thiết kế căn hộ của gia đình anh Quang Trường.
Nói về kinh nghiệm đập thông căn hộ, các KTS Nhà Xanh cho hay:” Nên mua căn hộ đập thông khi dự án bắt đầu xây dựng để KTS sẽ cùng khách hàng đưa ra phương án bố trí thông căn và gửi hồ sơ cho chủ đầu tư dự án phê duyệt. Như vậy, việc chia phòng theo thiết kế mới sẽ tránh lãng phí vật liệu và đập phá tường sau khi nhận nhà. Đặc biệt, phần thoát nước phải hạn chế dịch chuyển vị trí thiết kế, tránh trường hợp dịch quá xa sẽ hay bị tắc ứ trong quá trình sử dụng. Trong trường hợp phải dịch chuyển thì xin chủ đầu tư cho khoan rút lõi theo đúng kỹ thuật”.

Bên cạnh đó, người mua nhà cũng nên xác định rõ mục đích khi mua căn hộ đập thông. Từ đó tìm mua dự án, nghiên cứu về tiềm lực chủ đầu tư, gặp KTS để đưa phương án mặt bằng, so sánh giữa chi phí căn hộ đập thông và căn hộ tương tự. Cuối cùng chốt mặt bằng gửi khách hàng duyệt và lên phương án thiết kế, thi công cho phù hợp.

Với căn hộ của anh Quang Trường, KTS Nhà Xanh cho biết:”Ý tưởng căn hộ phải thật khác biệt, mỗi một góc nhỏ trong nhà đều tràn ngập ánh sáng và là nơi để con trẻ vui chơi. Với đề bài thiết kế không gian đón ánh sáng tự nhiên nên việc chọn gam màu và đồ nội thất cũng phải có sự kết nối, sau khi được tư vấn gia định mình quyết định xin gói nhận thô của chủ đầu tư”.
Giải pháp tuyệt vời mà các KTS có thể làm hài lòng gia đình anh Trường chính là mang lại một thiết kế không gian tinh tế, tuyệt đẹp và tiện ích phù hợp với nhu cầu sống của gia đình, tạo điểm nhấn cho từng không gian nhỏ nhất.
Với diện tích khá lớn KTS Nhà Xanh chú trọng đến tính riêng biệt và kết nối giữa các không gian.
Không gian phòng khách liên thông với không gian bếp nấu và phòng ăn được xen kẽ bởi không gian thờ riêng tư.

Khu vực nấu nướng được gia chủ đầu tư và dành cho diện tích khá rộng rãi. Hệ thống tủ bếp là sự kết hợp giữa gỗ óc chó tự nhiên và Acrilic An Cường màu trắng, trang bị bếp từ và đầy đủ các vật dụng tiện nghi với tổng thể vô cùng gọn gàng và ngăn nắp.

Điểm nhấn ngắn giữa khu vực ăn uống và nhà bếp là khu sơ chế đồ ăn và chậu rửa được thiết kế hiện đại, tạo nên một không gian ấn tượng và sang trọng cho những bữa cơm đầm ấm bên gia đình.
Không gian phòng ngủ được bố trí đối xứng 2 bên căn hộ. Phòng ngủ master có phòng thay đồ riêng được bố trí cạnh khu bếp ăn, để gia chủ dễ quán xuyến mọi hoạt động trong gia đình. Những không gian này có màu chủ đạo đều là những gam màu trung tính mang đến tinh tế.
Không gian của các con được KTS Nhà Xanh chú trọng dùng màu tươi mới, vừa cung cấp đủ độ sáng cần thiết, vừa được bố trí đủ chức năng và phù hợp với diện tích.

Được biết, toàn bộ nội thất căn hộ được hoàn thiện bằng gỗ óc chó hiện đại kết hợp với vật liệu gỗ An Cường.

Với giải pháp đập thông hai căn làm 1, tổng chi phí hoàn thiện khoảng 1,3 tỉ đồng hoàn thiện trọn gói bao gồm phần nội thất và thiết bị đầy đủ mang lại cho gia đình anh Trường một không gian tiện nghi và và hiện đại, giúp các thành viên trong gia đình có những phút giây thư giãn bình yên sau những bộ bề của cuộc sống.
Đăng ký tư vấn thiết kế, khảo sát và nhận báo giá: http://noithatnhaxanh.com.vn/Lien-he hoặc liên hệ trực tiếp qua:
Website:
Hotline: 093 796 5555
Email: noithatnhaxanh9999@gmail.com
Phản hồi